Astrolab à Labarthe vue de nuit - 2AU
Astrolab à Labarthe vue de jour - 2AU

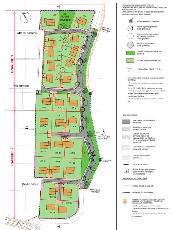
Dossier Loi sur l’eau Lotissement « La Belle Allée »

Capens (31)

La SARL LES PARCS souhaitant créer un lotissement sur une parcelle de plus de 1 ha avec un rejet des eaux pluviales dans le milieu naturel, elle s’est adjoint les compétences de 2AU pour la réalisation du Dossier Loi sur l’Eau alors obligatoire.

Maître d’ouvrage : 

SARL Les Parcs

Maître d’œuvre : 

Atelier d’Aménagement et d’Urbanisme (2AU)

Année de réalisation : 

2021

Superficie : 

1,9 ha

Capacité : 

26 lots à bâtir

Mission : 

Réalisation d’un Dossier Loi sur l’Eau concernant le lotissement « la belle allée 1 et 2 » à CAPENS.

Ouvrages : 

  • Gestion des eaux des lots à la parcelle (BV5)
  • Tranchée drainante de 186 m3 pour gérer une partie des eaux amont (BV1)
  • Tranchée drainante de 72 m3 située sous un bassin aérien sec infiltrant de 62 m3 pour le BV2
  • Tranchée drainante de 100 m3 pour le BV4