Astrolab à Labarthe vue de nuit - 2AU
Astrolab à Labarthe vue de jour - 2AU

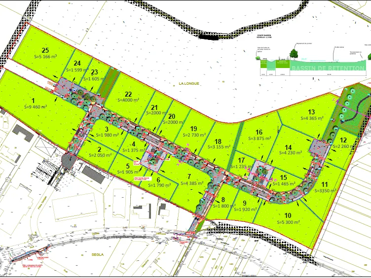
Dossier Loi sur l’eau ZAE Segla 2

Seysses (31)

SEGLA 2 est une extension de la ZAE existante afin de relancer l’économie de cette zone. Porté par LE MURETAIN AGGLO, le projet prévoit la création de 25 lots destinés à recevoir diverses activités.

Maître d’ouvrage : 

Le Muretain Agglo

Maître d’œuvre : 

Atelier d’Aménagement et d’Urbanisme (2AU)

Année de réalisation : 

2021

Superficie : 

9,7 ha

Capacité : 

25 lots

Mission : 

Réalisation d’un Dossier Loi sur l’Eau concernant la ZAE SEGLA 2 à Seysses

Ouvrages : 

  • Gestion des eaux des lots à la parcelle

  • Collecte des eaux des voiries par fossés équipés d’un géotextile anti-contaminant

  • Stockage et décantation de ces eaux dans un bassin aérien sec enherbé de rétention-infiltration dimensionné pour une pluie centennale avec un débit de rejet limité à 5l/s/ha, soit de capacité 430 m3